Contact Us
玖鸟自动化设备(浙江)有限公司
咨询电话:0577-66999567
图文传真:0577-66991167
手机:18605873796
联系人:牟经理
E-mail:2583835589@qq.com
地 址:浙江省温州市永嘉县瓯北街道塘头村芦桥

详细介绍

电动卡箍式球阀产品概述
AOX系列电动卡箍式球阀,皆经过了精密的检验流程和严格的品质管理,流道经过精密抛光和除*处理,采用了全包的4F密封,没有死角且容易清洗。执行器与球阀连接无需支架,减少了因安装连接引起的质量问题,同时也为厂区密密麻麻的设备节约了空间。
电动卡箍式球阀产品特点
1.采用316不锈钢精制而成。
2.流道内壁240Grit抛光, 保持流体畅通无阻。
3.采用的全包PTFE没有死角,保证卫生。
4.无支架与执行器- -体式连接。
电动卡箍式球阀技术参数
| 公称通径DN | DN15~DN100(mm) |
| 公称压力 | 1.6~6.3MPa |
| 适用温度 | -20℃~+200℃ |
| 连接方式 | 对焊、卡箍 |
| 阀结构 | 三块式 |
| 阀体材质 | 316L、316、304 |
| 阀芯材质 | 316L、316、304 |
| 密封材料 | PTFE |
| 适用介质 | 卫生级别工矿适用 |
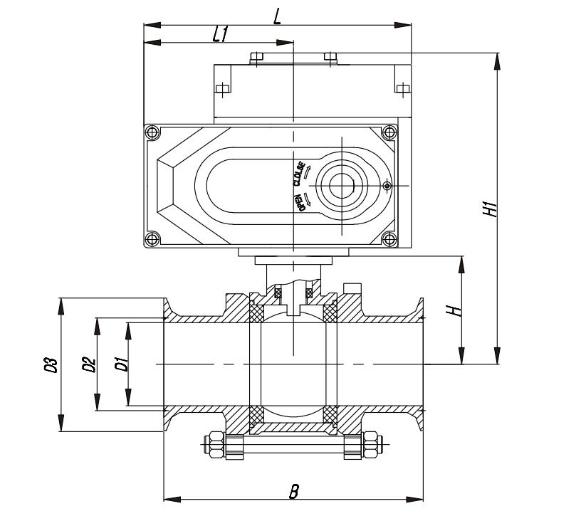
电动卡箍式球阀安装尺寸
| 公称通径 DN | 英寸 | 尺 寸(mm) | 执行机构选配 (常温常压) | ||||||
| 卡箍 | 对接 | ||||||||
| L | D1 | D2 | L | D1 | D2 | ||||
| 15 | 1/2 | 88.9 | 9.4 | 25.4 | 88.9 | 9.4 | 12.7 | AOX-R-005 | CHQ-005 |
| 20 | 3/4 | 101.6 | 15.7 | 25.4 | 101.6 | 15.7 | 19.1 | AOX-R-005 | CHQ-005 |
| 25 | 1 | 114.3 | 22.1 | 50.4 | 114.3 | 22.1 | 25.4 | AOX-R-005 | CHQ-005 |
| 40 | 2 | 139.7 | 34.8 | 50.4 | 139.7 | 34.8 | 38.1 | AOX-R-005 | CHQ-005 |
| 50 | 2½ | 158.8 | 47.5 | 639. | 158.8 | 47.5 | 50.8 | AOX-R-008 | CHQ-008 |
| 65 | 2½ | 197.5 | 60.2 | 77.5 | 197.5 | 60.2 | 63.5 | AOX-R-010 | CHQ-010 |
| 80 | 3 | 228.6 | 72.9 | 90.9 | 228.6 | 72.9 | 76.2 | AOX-R-020 | CHQ-020 |
| 100 | 4 | 241.3 | 97.4 | 118.9 | 241.3 | 97.4 | 101.6 | AOX-R-020 | CHQ-020 |